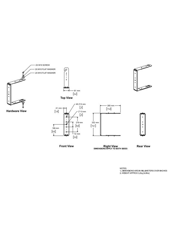
Το AMM108 U-bracket επιτρέπει την ευέλικτη τοποθέτηση ενός μόνο ηχείου AMM108 προσφέροντας τη δυνατότητα περιστροφής ώστε να επιτευχθούν πολλές γωνίες τοποθέτησης του ηχείου . Η δομική ακαμψία του βραχίονα επιτρέπει είτε σύνδεση δύο σημείων σε επίπεδες επιφάνειες όπως τοίχους ή οροφές, είτε σύνδεση ενός σημείου μέσω της κεντρικής οπής συναρμολόγησης σε δευτερεύουσες δομές στήριξης, όπως κιτ τοποθέτησης φωτιστικών .
Ο βραχίονας ταιριάζει (σπείρωμα M10 x 20 mm) στο πλάι του μεγαφώνου AMM108, συνοδεύεται από τις απαραίτητες βίδες για την τοποθέτηση του βραχίονα U στο μεγάφωνο και δεν προορίζεται για μόνιμη εξωτερική εγκατάσταση.